Skip til hoved indholdet Min Side Min Side

Velkommen til Huginsvang

Afdelingen er opført i 1982, hvor der er bygget 8 stk. 2-værelses- og 6 stk. 3-værelsesboliger. Cykelsti direkte
til skole og indkøbscenter.

Afdelingsadresser
Huginsvang

Afdelingsinfo

Galleri
Se mere

De viste indvendige fotos fra afdelingens lejligheder er eksempler på indretning, materialer og farvevalg. Der kan forekomme afvigelser fra det viste.

Husdyr
Ja

Husdyrhold er tilladt efter ansøgning

Hvidevarer
Se mere

Køl/frys, komfur, emhætte

Indskudslån
Se mere

Der kan søges indskudslån til denne afdeling

TV/antenne
Se mere

Afdelingen er tilsluttet fælles kabel TV

Husleje
Se mere

Der er forskellige huslejer, afhængig af, om der er foretaget individuelle renoveringer.

Forsyning
Se mere

VAB tilmelder til følgende forsyningsselskaber: Norlys, Provas og Vojens Fjernvarme

Boliger i afdelingen

Lejligheder

2 rum

Lejligheder
Lejligheder

3 rum

Lejligheder

Boligtype

Værelser

Størrelse

Husleje

Indskud/dp

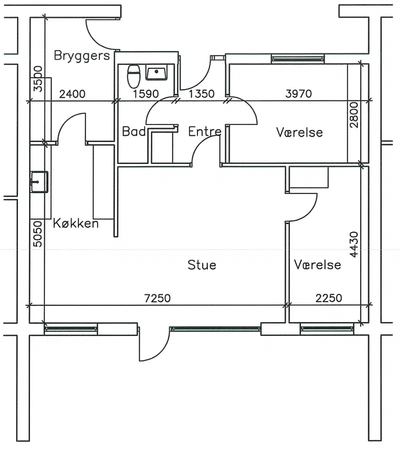
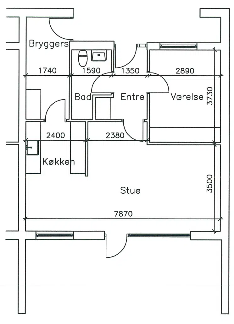
Plantegning

Gårdhavehus-Lejligheder

2

70 m²

3861 kr.

16000 kr.

Gårdhavehus-Lejligheder

3

85 m²

4508 kr.

19000 kr.

Afdelingsvicevært

Søren Sommerlund

Træffetider

Alle hverdage fra kl. 9.00-9.30

Afdelings dokumenter og filer

Placering

Bliv medlem

Vojens Andels-Boligforening

Østergade 1

6500 Vojens

CVR: 12333110

Konto nr. 9737 - 0000139092

Mobilepay 21105

Telefon: 74542072
post@vojensab.dk
Åbningstider

Personlige henvendelser

Mandag til onsdagkl. 10.00 - 12.00
Torsdagkl. 10.00 - 12.00 samt 15.30 - 17.00
FredagLUKKET
Åbningstider

Telefontider

Mandag til onsdagkl. 09.00 - 12.00
Torsdagkl. 09.00 - 12.00 samt 15.30 - 17.00
FredagLUKKET


Genveje