---
title: "Syrenvej / Hybenvej / Tjørnevej / Øster Alle"
description: "1-12"
date: "2026-02-19"
created: "2025-10-27"
---

-
-

https://maps.google.dk/?q=55.2426454,9.3084248

# Syrenvej / Hybenvej / Tjørnevej / Øster Alle

Afdeling 12

## Velkommen til Syrenvej / Hybenvej / Tjørnevej / Øster Alle

Afdelingen er opført i 1968, hvor der er bygget 13 stk. 4-vær. rødstens parcelhuse, 30 stk. 4-vær. gulstensrækkehuse, 11 stk. 4-vær. fritliggende gulstens parcelhuse og 16 stk. 5-vær. større fritliggende parcelhuse med 3 børneværelser og 2 badeværelser, alle har carporte med redskabsrum. Beliggende i grønne områder og op til en lille skov. Boligforeningens mest eftertragtede boligområde.

**Afdelingsadresser**
Syrenvej - Hybenvej - Øster Alle - Tjørnevej

## Afdelingsinfo

Galleri

Se mere

De viste indvendige fotos fra afdelingens lejligheder er eksempler på indretning, materialer og farvevalg.
Der kan forekomme afvigelser fra det viste.

Husdyr

Ja

Husdyrhold er tilladt efter ansøgning

Hvidevarer

Se mere

Køl/frys, komfur, emhætte

Indskudslån

Se mere

Der kan søges indskudslån til denne afdeling

TV/antenne

Se mere

Afdelingen er tilsluttet fælles kabel TV

Husleje

Se mere

Der er forskellige huslejer, afhængig af, om der er foretaget individuelle renoveringer.

Forsyning

Se mere

VAB tilmelder til følgende forsyningsselskaber: Norlys, Provas og Vojens Fjernvarme

## Boliger i afdelingen

Lejligheder

4 rum

Lejligheder

Lejligheder

5 rum

Lejligheder

Boligtype

Værelser

Størrelse

Husleje

Indskud/dp

Plantegning

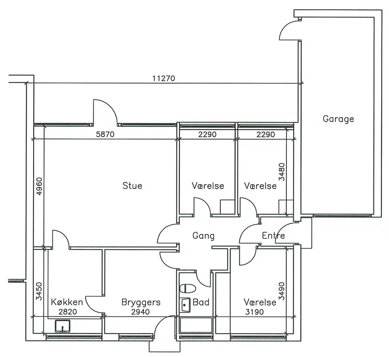
Parcelhus-Lejligheder

4

90 m²

4516 kr.

21000 kr.

![](https://vojensab.dk/i/MOLIRIMEDIA/033e274e-814e-48f9-fd87-08de013c75e2?width=800)

Parcelhus-Lejligheder

4

86 m²

4349 kr.

20000 kr.

![](https://vojensab.dk/i/MOLIRIMEDIA/93252bdf-81ef-48b1-fdc8-08de013c75e2?width=800)

Parcelhus-Lejligheder

5

113 m²

5433 kr.

27000 kr.

![](https://vojensab.dk/i/MOLIRIMEDIA/7f1e4971-499a-49a3-fd59-08de013c75e2?width=800)

Rækkehus-Lejligheder

4

89 m²

4896 kr.

21000 kr.

![](https://vojensab.dk/i/MOLIRIMEDIA/7340e780-9cf8-4078-fd7e-08de013c75e2?width=800)

## Afdelingsvicevært

### Michael Bjørkquist

22109740

mb@vojensab.dk

### Træffetider

Alle hverdage fra kl. 9.00-9.30

## Afdelings dokumenter og filer

###

                                                Referater - afdelingsmøder

[Referat ordinært afd. møde afd. 12 - 2025.pdf](https://vojensab.dk/p/Files/Boligdata/Afdelinger/1-12/Referater%20-%20afdelingsm&#xF8;der/Referat-ordin&#xE6;rt-afd.-m&#xF8;de-afd.-12---2025.pdf)

###

                                                Regler i afdelingen

[Ordensregler NYE.pdf](https://vojensab.dk/p/Files/Boligdata/Afdelinger/1-12/Regler%20i%20afdelingen/Ordensregler-NYE.pdf)
                                            [Ordensregler.pdf](https://vojensab.dk/p/Files/Boligdata/Afdelinger/1-12/Regler%20i%20afdelingen/Ordensregler.pdf)
                                            [Råderet-afd.-12(1).pdf](https://vojensab.dk/p/Files/Boligdata/Afdelinger/1-12/Regler%20i%20afdelingen/R&#xE5;deret-afd.-12%281%29.pdf)
                                            [Råderet afd. 12.pdf](https://vojensab.dk/p/Files/Boligdata/Afdelinger/1-12/Regler%20i%20afdelingen/R&#xE5;deret-afd.-12.pdf)
                                            [Vedligeholdelsesreglement.pdf](https://vojensab.dk/p/Files/Boligdata/Afdelinger/1-12/Regler%20i%20afdelingen/Vedligeholdelsesreglement.pdf)

## Placering
