---
title: "Seniorbofælleskabet Fuglehaven"
description: "1-25"
date: "2026-03-11"
created: "2025-10-27"
---

-
-
-
-
-
-
-
-
-
-

https://maps.google.dk/?q=55.2544416,9.2855275

# Seniorbofælleskabet Fuglehaven

Afdeling 25

## Velkommen til Seniorbofælleskabet Fuglehaven

Afdelingen er opført i 2003, hvor der er bygget et seniorbofællesskab for ældre over 50 år og ingen hjemmeboende børn. Der er ialt 20 stk. lejligheder. Afdelingen er opført som rækkehuse med 2 rums boliger på 76 m2, 3 rums boliger på 85 m2 samt 4 rums boliger på 96 m2 og 105 m2. Alle med egen have. I afdeling 25 findes desuden beboerhus og gæsteværelser til rådighed for afdelingens beboere og gæster. Afdelingen ligger i grønne omgivelser, tæt ved indkøb og skole.

**Afdelingsadresser**
Fuglehaven

## Afdelingsinfo

Galleri

Se mere

De viste indvendige fotos fra afdelingens lejligheder er eksempler på indretning, materialer og farvevalg.
Der kan forekomme afvigelser fra det viste.

Husdyr

Ja

Husdyrhold er tilladt efter ansøgning

Hvidevarer

Se mere

Køl/frys, komfur, emhætte

Indskudslån

Se mere

Der kan søges indskudslån til denne afdeling

TV/antenne

Se mere

Afdelingen er tilsluttet fælles kabel TV

Husleje

Se mere

Der er forskellige huslejer, afhængig af, om der er foretaget individuelle renoveringer.

Forsyning

Se mere

VAB tilmelder til følgende forsyningsselskaber: Norlys, Provas og Vojens Fjernvarme

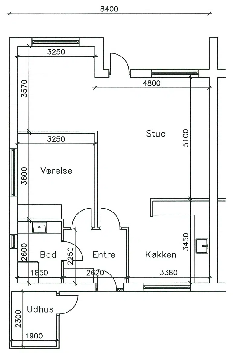
## Boliger i afdelingen

Lejligheder

2 rum

Lejligheder

Lejligheder

3 rum

Lejligheder

Boligtype

Værelser

Størrelse

Husleje

Indskud/dp

Plantegning

Rækkehus-Lejligheder

2

76 m²

5365 kr.

19000 kr.

![](https://vojensab.dk/i/MOLIRIMEDIA/bb6a9287-e2dc-4140-fd4b-08de013c75e2?width=800)

Rækkehus-Lejligheder

2

85 m²

5867 kr.

21000 kr.

![](https://vojensab.dk/i/MOLIRIMEDIA/f7bcf4bc-6011-445c-fd45-08de013c75e2?width=800)

Rækkehus-Lejligheder

3

105 m²

6970 kr.

25000 kr.

![](https://vojensab.dk/i/MOLIRIMEDIA/c797993f-9544-4c17-fd71-08de013c75e2?width=800)

Rækkehus-Lejligheder

3

96 m²

6480 kr.

23000 kr.

![](https://vojensab.dk/i/MOLIRIMEDIA/c424960c-30cb-4c63-fdbd-08de013c75e2?width=800)

## Afdelingsvicevært

### Nicolai Hansen

22109708

nh@vojensab.dk

### Træffetider

Alle hverdage fra kl. 9.00-9.30

## Afdelingsbestyrelsen

Navn

Titel

Valgperiode

Kjeld Riis Jensen

Bestyrelse

Periode: 01.10.2024 - 30.09.2026

Conny Pedersen

Bestyrelse

Periode: 01.10.2025 - 30.09.2027

Renate Wright

Bestyrelse

Periode: 01.10.2024 - 30.09.2026

Flemming Høgh

Suppleant

Periode: 01.10.2025 - 30.09.2026

Henning Andersen

Suppleant

Periode: 01.10.2025 - 30.09.2026

## Afdelings dokumenter og filer

###

                                                Referater - afdelingsmøder

[Referat ordinært afd. møde afd. 25 - 2025.pdf](https://vojensab.dk/p/Files/Boligdata/Afdelinger/1-25/Referater%20-%20afdelingsm&#xF8;der/Referat-ordin&#xE6;rt-afd.-m&#xF8;de-afd.-25---2025.pdf)

###

                                                Regler i afdelingen

[Ordensregler NYE.pdf](https://vojensab.dk/p/Files/Boligdata/Afdelinger/1-25/Regler%20i%20afdelingen/Ordensregler-NYE.pdf)
                                            [Ordensregler.pdf](https://vojensab.dk/p/Files/Boligdata/Afdelinger/1-25/Regler%20i%20afdelingen/Ordensregler.pdf)
                                            [Råderet afd. 25.pdf](https://vojensab.dk/p/Files/Boligdata/Afdelinger/1-25/Regler%20i%20afdelingen/R&#xE5;deret-afd.-25.pdf)
                                            [Vedligeholdelsesreglement.pdf](https://vojensab.dk/p/Files/Boligdata/Afdelinger/1-25/Regler%20i%20afdelingen/Vedligeholdelsesreglement.pdf)

## Placering
