---
title: "Odinsvej / Huginsvang"
description: "1-14"
date: "2026-03-11"
created: "2025-10-27"
---

-
-
-
-
-
-
-
-
-

https://maps.google.dk/?q=55.2522827,9.2964163

# Odinsvej / Huginsvang

Afdeling 14

## Velkommen til Odinsvej / Huginsvang

Afdelingen er opført i 1975, hvor der er bygget 72 stk. gårdhavehuse fordelt på 2 værelses lejligheder på 55 m2 og 67 m2, 3 værelses lejligheder på 98 m2 og 4 værelses lejligheder på 87 m2 og 111 m2. Alle har egen carport. Afdelingen er beliggende med store grønne friarealer, og cykelsti direkte til skole og til indkøbscenter.

**Afdelingsadresser**
Odinsvej - Huginsvang

## Afdelingsinfo

Galleri

Se mere

De viste indvendige fotos fra afdelingens lejligheder er eksempler på indretning, materialer og farvevalg. Der kan forekomme afvigelser fra dette.

Husdyr

Ja

Husdyrhold er tilladt efter ansøgning

Hvidevarer

Se mere

Køl/frys, komfur, emhætte

Indskudslån

Se mere

Der kan søges indskudslån til denne afdeling

TV/antenne

Se mere

Afdelingen er tilsluttet fælles kabel TV

Husleje

Se mere

Der er forskellige huslejer, afhængig af, om der er foretaget individuelle renoveringer.

Forsyning

Se mere

VAB tilmelder til følgende forsyningsselskaber: Norlys, Provas og Vojens Fjernvarme

## Boliger i afdelingen

Lejligheder

2 rum

Lejligheder

Lejligheder

3 rum

Lejligheder

Lejligheder

4 rum

Lejligheder

Boligtype

Værelser

Størrelse

Husleje

Indskud/dp

Plantegning

Gårdhavehus-Lejligheder

2

55 m²

3348 kr.

13000 kr.

![](https://vojensab.dk/i/MOLIRIMEDIA/95321a57-0636-4951-fda8-08de013c75e2?width=800)

Gårdhavehus-Lejligheder

2

66.2 m²

3868 kr.

15000 kr.

![](https://vojensab.dk/i/MOLIRIMEDIA/fbf31a1a-2a34-4886-fdcd-08de013c75e2?width=800)

Gårdhavehus-Lejligheder

3

98 m²

5351 kr.

22000 kr.

![](https://vojensab.dk/i/MOLIRIMEDIA/fd719738-5756-4a3d-fd98-08de013c75e2?width=800)

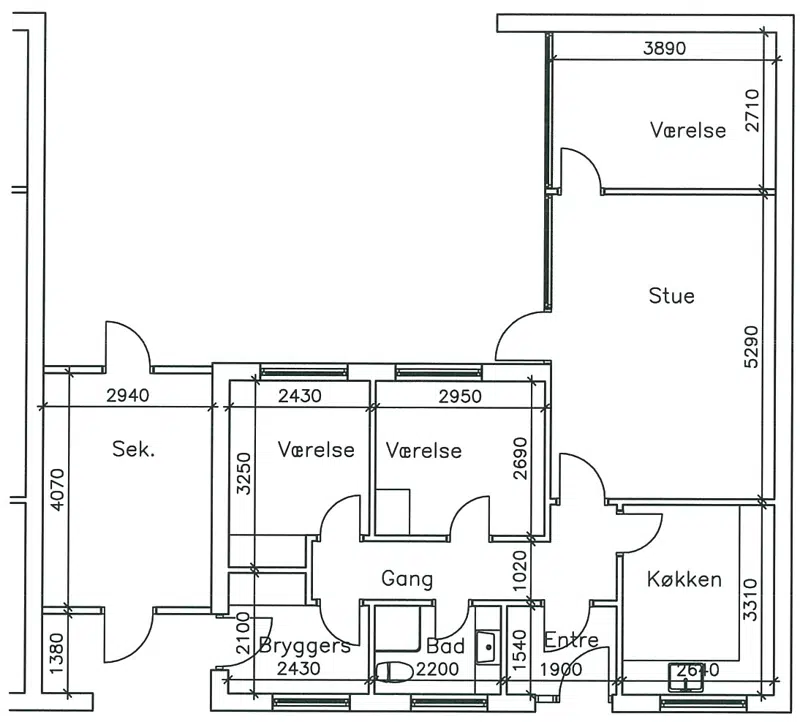
Gårdhavehus-Lejligheder

4

111 m²

5942 kr.

25000 kr.

![](https://vojensab.dk/i/MOLIRIMEDIA/bcc05203-dd35-4fea-fdc3-08de013c75e2?width=800)

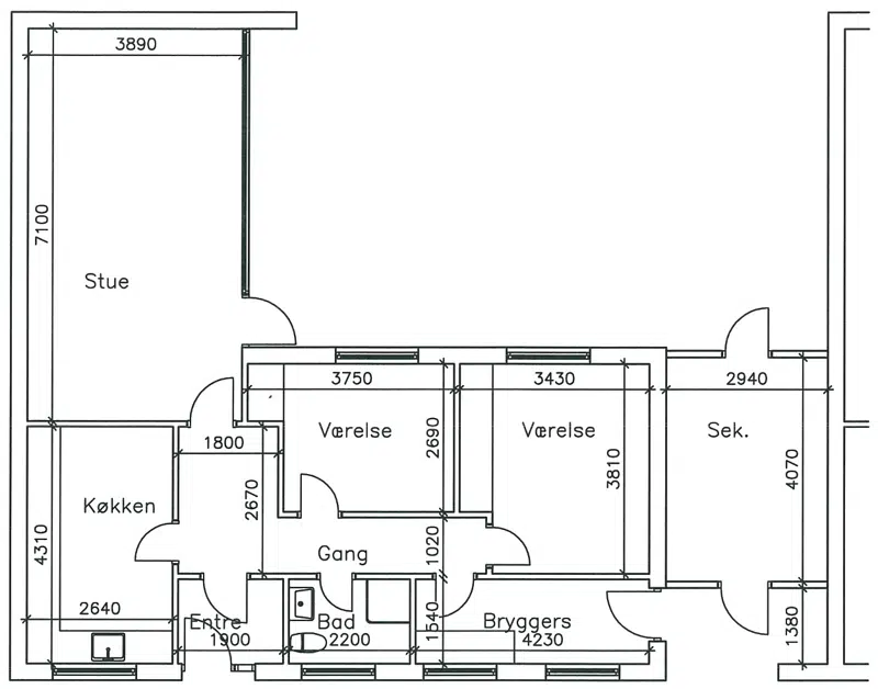
Gårdhavehus-Lejligheder

4

87 m²

4823 kr.

20000 kr.

![](https://vojensab.dk/i/MOLIRIMEDIA/bdbfae0f-d794-4442-fd43-08de013c75e2?width=800)

## Afdelingsvicevært

### Nicolai Hansen

22109708

nh@vojensab.dk

### Træffetider

Alle hverdage fra kl. 9.00-9.30

## Afdelings dokumenter og filer

###

                                                Referater - afdelingsmøder

[Referat ordinært afd. møde afd. 13-14-15 2025.pdf](https://vojensab.dk/p/Files/Boligdata/Afdelinger/1-14/Referater%20-%20afdelingsm&#xF8;der/Referat-ordin&#xE6;rt-afd.-m&#xF8;de-afd.-13-14-15-2025.pdf)

###

                                                Regler i afdelingen

[Ordensregler NYE.pdf](https://vojensab.dk/p/Files/Boligdata/Afdelinger/1-14/Regler%20i%20afdelingen/Ordensregler-NYE.pdf)
                                            [Ordensregler.pdf](https://vojensab.dk/p/Files/Boligdata/Afdelinger/1-14/Regler%20i%20afdelingen/Ordensregler.pdf)
                                            [Råderet afd. 14.pdf](https://vojensab.dk/p/Files/Boligdata/Afdelinger/1-14/Regler%20i%20afdelingen/R&#xE5;deret-afd.-14.pdf)
                                            [Vedligeholdelsesreglement.pdf](https://vojensab.dk/p/Files/Boligdata/Afdelinger/1-14/Regler%20i%20afdelingen/Vedligeholdelsesreglement.pdf)

## Placering
