---
title: "Odinsvej"
description: "1-13"
date: "2026-03-11"
created: "2025-10-27"
---

-
-
-
-

https://maps.google.dk/?q=55.2540551,9.2957343

# Odinsvej

Afdeling 13

## Velkommen til Odinsvej

Afdelingen er opført i 1974, hvor der er bygget 43 stk. gårdhavehuse fordelt på tre typer 2 værelses lejligheder på 55 m2, 67 m2 og 73 m2. Desuden findes et antal 3 værelses lejligheder på 101 m2, 4 værelses lejligheder på 115 m2 og 6 værelses lejligheder på 128 m2. Der hører egen  carport til hver lejlighed. Afdelingen er beliggende i område med store grønne friarealer og sø. Cykelsti direkte til skole og indkøbscenter.

**Afdelingsadresser**
Odinsvej

## Afdelingsinfo

Galleri

Se mere

De viste indvendige fotos fra afdelingens lejligheder er eksempler på indretning, materialer og farvevalg. Der kan forekomme afvigelser fra dette.

Husdyr

Ja

Husdyrhold er tilladt efter ansøgning

Hvidevarer

Se mere

Køl/frys, komfur, emhætte

Indskudslån

Se mere

Der kan søges indskudslån til denne afdeling

TV/antenne

Se mere

Afdelingen er tilsluttet fælles kabel TV

Husleje

Se mere

Der er forskellige huslejer, afhængig af, om der er foretaget individuelle renoveringer.

Forsyning

Se mere

VAB tilmelder til følgende forsyningsselskaber: Norlys, Provas, Vojens Fjernvarme og Brunata

## Boliger i afdelingen

Lejligheder

2 rum

Lejligheder

Lejligheder

3 rum

Lejligheder

Lejligheder

4 rum

Lejligheder

Lejligheder

6 rum

Lejligheder

Boligtype

Værelser

Størrelse

Husleje

Indskud/dp

Plantegning

Gårdhavehus-Lejligheder

2

55 m²

3913 kr.

13000 kr.

![](https://vojensab.dk/i/MOLIRIMEDIA/95321a57-0636-4951-fda8-08de013c75e2?width=800)

Gårdhavehus-Lejligheder

2

67 m²

4459 kr.

15000 kr.

![](https://vojensab.dk/i/MOLIRIMEDIA/fbf31a1a-2a34-4886-fdcd-08de013c75e2?width=800)

Gårdhavehus-Lejligheder

2

73 m²

4180 kr.

17000 kr.

![](https://vojensab.dk/i/MOLIRIMEDIA/14007b5e-1a26-4127-fda4-08de013c75e2?width=800)

Gårdhavehus-Lejligheder

3

101 m²

5475 kr.

23000 kr.

![](https://vojensab.dk/i/MOLIRIMEDIA/8179356c-12a8-4f93-fd68-08de013c75e2?width=800)

Gårdhavehus-Lejligheder

4

115 m²

7466 kr.

26000 kr.

![](https://vojensab.dk/i/MOLIRIMEDIA/0c0f3a06-cbe5-467f-fdaf-08de013c75e2?width=800)

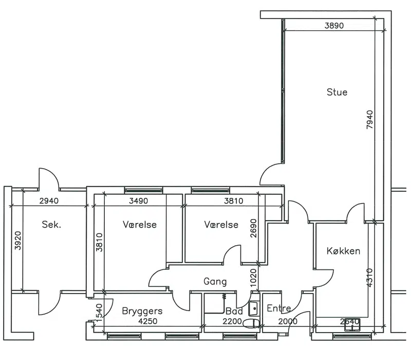
Gårdhavehus-Lejligheder

6

128 m²

6714 kr.

29000 kr.

![](https://vojensab.dk/i/MOLIRIMEDIA/b9eb4f70-0a46-4547-fdb2-08de013c75e2?width=800)

## Afdelingsvicevært

### Nicolai Hansen

22109708

nh@vojensab.dk

### Træffetider

Alle hverdage fra kl. 9.00-9.30

## Afdelings dokumenter og filer

###

                                                Referater - afdelingsmøder

[Referat ordinært afd. møde afd. 13-14-15 2025.pdf](https://vojensab.dk/p/Files/Boligdata/Afdelinger/1-13/Referater%20-%20afdelingsm&#xF8;der/Referat-ordin&#xE6;rt-afd.-m&#xF8;de-afd.-13-14-15-2025.pdf)

###

                                                Regler i afdelingen

[Ordensregler NYE.pdf](https://vojensab.dk/p/Files/Boligdata/Afdelinger/1-13/Regler%20i%20afdelingen/Ordensregler-NYE.pdf)
                                            [Ordensregler.pdf](https://vojensab.dk/p/Files/Boligdata/Afdelinger/1-13/Regler%20i%20afdelingen/Ordensregler.pdf)
                                            [Råderet afd. 13.pdf](https://vojensab.dk/p/Files/Boligdata/Afdelinger/1-13/Regler%20i%20afdelingen/R&#xE5;deret-afd.-13.pdf)
                                            [Vedligeholdelsesreglement.pdf](https://vojensab.dk/p/Files/Boligdata/Afdelinger/1-13/Regler%20i%20afdelingen/Vedligeholdelsesreglement.pdf)

## Placering
