---
title: "Jyllandsgade / Smedevænget / Kløvervej"
description: "1-7"
date: "2026-02-19"
created: "2025-10-27"
---

-
-
-

https://maps.google.dk/?q=55.2450661,9.3094083

# Jyllandsgade / Smedevænget / Kløvervej

Afdeling 7

## Velkommen til Jyllandsgade / Smedevænget / Kløvervej

Afdelingen er opført i 1955, hvor der er bygget 49 stk. blandede parcelhuse, gårdhavehuse og rækkehuse, alle med kælder og have. Der findes 3-rums boliger på 72m2, 4-rums boliger på 79 m2, andre 4 rums boliger på 84 m2 og 86 m2, samt 88 m2. Derudover findes 5 lejligheder på 5 rum og 107 m2.  Afdelingen ligger skønt grænsende op til store grønne områder, tæt ved skole, indkøb og togstation.

**Afdelingsadresser**
Jyllandsgade - Smedevænget - Kløvervej

## Afdelingsinfo

Galleri

Se mere

De viste indvendige fotos fra afdelingens lejligheder er eksempler på indretning, materialer og farvevalg.
Der kan forekomme afvigelser fra det viste.

Husdyr

Ja

Husdyrhold er tilladt efter ansøgning

Hvidevarer

Se mere

Emhætte

Indskudslån

Se mere

Der kan IKKE søges indskudslån til denne afdeling

TV/antenne

Se mere

Afdelingen er tilsluttet fælles kabel TV

Husleje

Se mere

Der er forskellige huslejer, afhængig af, om der er foretaget individuelle renoveringer.

Forsyning

Se mere

VAB tilmelder til følgende forsyningsselskaber: Norlys, Provas og Vojens Fjernvarme

## Boliger i afdelingen

Lejligheder

3 rum

Lejligheder

Lejligheder

4 rum

Lejligheder

Lejligheder

5 rum

Lejligheder

Boligtype

Værelser

Størrelse

Husleje

Indskud/dp

Plantegning

Rækkehus-Lejligheder

3

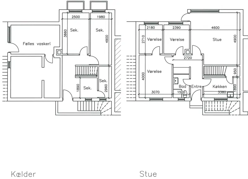
72 m²

4577 kr.

16000 kr.

![](https://vojensab.dk/i/MOLIRIMEDIA/73f85472-5941-409d-fda7-08de013c75e2?width=800)

Rækkehus-Lejligheder

4

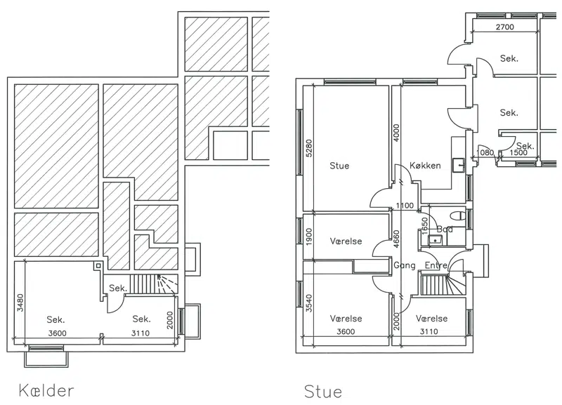
88 m²

5386 kr.

20000 kr.

![](https://vojensab.dk/i/MOLIRIMEDIA/172e0e08-47a4-4803-fd52-08de013c75e2?width=800)

Rækkehus-Lejligheder

4

86 m²

5219 kr.

20000 kr.

![](https://vojensab.dk/i/MOLIRIMEDIA/c869216b-68eb-43a3-fd8c-08de013c75e2?width=800)

Rækkehus-Lejligheder

4

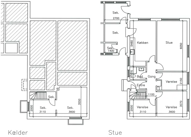
84 m²

6791 kr.

19000 kr.

![](https://vojensab.dk/i/MOLIRIMEDIA/408fac29-56d3-4247-fd6b-08de013c75e2?width=800)

Rækkehus-Lejligheder

4

88 m²

5396 kr.

20000 kr.

![](https://vojensab.dk/i/MOLIRIMEDIA/86e356b3-d4c8-40a7-fd9d-08de013c75e2?width=800)

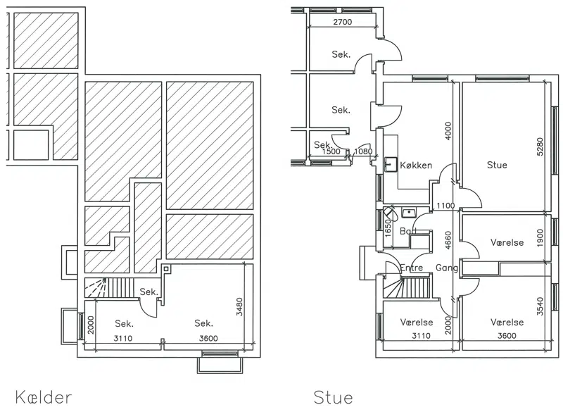
Rækkehus-Lejligheder

4

86 m²

5259 kr.

20000 kr.

![](https://vojensab.dk/i/MOLIRIMEDIA/462294a3-f6f7-4918-fd73-08de013c75e2?width=800)

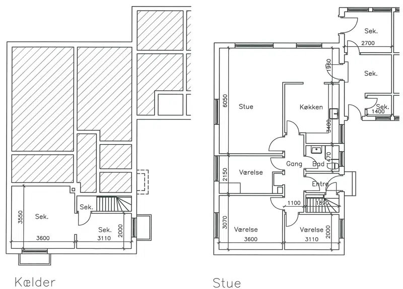
Rækkehus-Lejligheder

4

79 m²

5581 kr.

18000 kr.

![](https://vojensab.dk/i/MOLIRIMEDIA/d8fb7127-2fdc-43ee-fd4d-08de013c75e2?width=800)

Rækkehus-Lejligheder

4

79 m²

5551 kr.

18000 kr.

![](https://vojensab.dk/i/MOLIRIMEDIA/4725c34e-ca73-414c-fd6d-08de013c75e2?width=800)

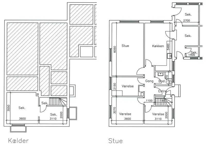
Rækkehus-Lejligheder

4

86 m²

5979 kr.

20000 kr.

![](https://vojensab.dk/i/MOLIRIMEDIA/4b9e5908-aabb-45ac-fd9b-08de013c75e2?width=800)

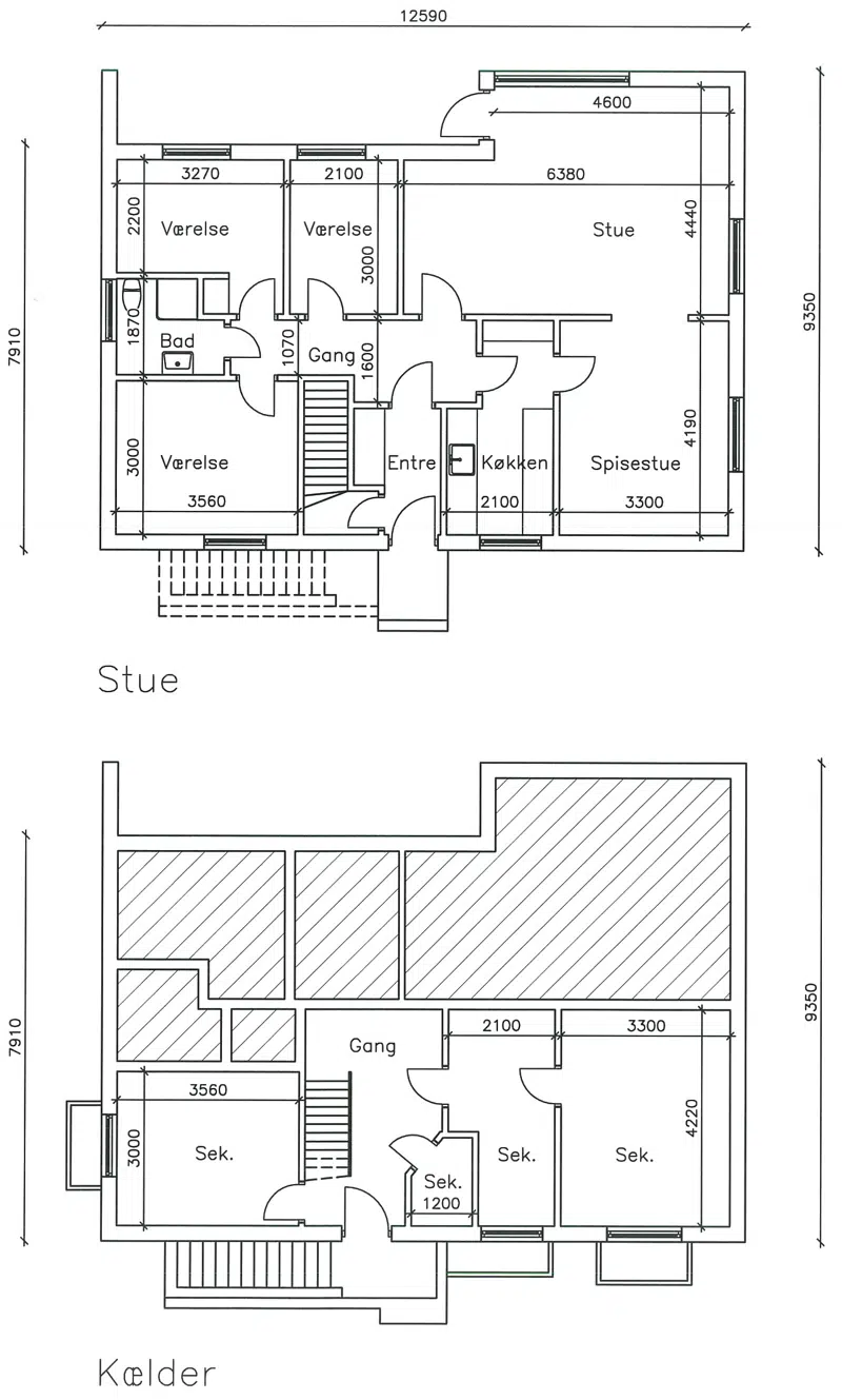
Rækkehus-Lejligheder

5

107 m²

6200 kr.

25000 kr.

![](https://vojensab.dk/i/MOLIRIMEDIA/45f7a1b2-d51f-43f4-fd5d-08de013c75e2?width=800)

## Afdelingsvicevært

### Michael Bjørkquist

22109740

mb@vojensab.dk

### Træffetider

Alle hverdage fra kl. 9.00-9.30

## Afdelings dokumenter og filer

## Placering
