---
title: "Bregnbjergparken / Odinsvej"
description: "1-16"
date: "2026-02-19"
created: "2025-10-27"
---

-
-
-
-
-

https://maps.google.dk/?q=55.2504768,9.2902227

# Bregnbjergparken / Odinsvej

Afdeling 16

## Velkommen til Bregnbjergparken / Odinsvej

Afdelingen er opført i 1984, hvor der er bygget 30 stk. gårdhavehuse i henholdsvis 1 og 2 plan. Lejlighederne har forskellig størrelse og indretning. Således findes et antal 2-rums lejligheder, 3-rums og 4-rums. Afdelingen er opført sammen med afdeling 17 og 18, tilsammen kaldet Bregnbjergparken , og ligger meget tæt på indkøbscenter med cykelsti hertil, samt til skole og idrætsfaciliteter.

**Afdelingsadresser**
Odinsvej - Odinsvej - Odinsvej

## Afdelingsinfo

Galleri

Se mere

De viste indvendige fotos fra afdelingens lejligheder er eksempler på indretning, materialer og farvevalg. Der kan forekomme afvigelser fra dette.

Husdyr

Ja

Det er tilladt at holde 1 hund eller kat pr. husstand efter ansøgning

Hvidevarer

Se mere

Køl/frys, komfur, emhætte

Indskudslån

Se mere

Der kan søges indskudslån til denne afdeling

TV/antenne

Se mere

Afdelingen er tilsluttet fælles kabel TV

Husleje

Se mere

Der er forskellige huslejer, afhængig af, om der er foretaget individuelle renoveringer.

Forsyning

Se mere

VAB tilmelder til følgende forsyningsselskaber: Norlys, Provas og Vojens Fjernvarme

## Boliger i afdelingen

Ungdomsboliger

1 rum

Ungdomsboliger

Lejligheder

2 rum

Lejligheder

Lejligheder

3 rum

Lejligheder

Lejligheder

4 rum

Lejligheder

Boligtype

Værelser

Størrelse

Husleje

Indskud/dp

Plantegning

Gårdhavehus-Lejligheder

2

67 m²

5427 kr.

15000 kr.

![](https://vojensab.dk/i/MOLIRIMEDIA/cdb81a10-732b-4663-fd4a-08de013c75e2?width=800)

Gårdhavehus-Lejligheder

2

67 m²

4604 kr.

15000 kr.

![](https://vojensab.dk/i/MOLIRIMEDIA/cdb81a10-732b-4663-fd4a-08de013c75e2?width=800)

Gårdhavehus-Lejligheder

2

67 m²

4223 kr.

15000 kr.

![](https://vojensab.dk/i/MOLIRIMEDIA/cdb81a10-732b-4663-fd4a-08de013c75e2?width=800)

Gårdhavehus-Lejligheder

3

81 m²

5489 kr.

18000 kr.

![](https://vojensab.dk/i/MOLIRIMEDIA/b43d3698-0242-4496-fd93-08de013c75e2?width=800)

Gårdhavehus-Lejligheder

3

85 m²

5625 kr.

19000 kr.

![](https://vojensab.dk/i/MOLIRIMEDIA/2014e817-e1d6-444d-fd69-08de013c75e2?width=800)

Gårdhavehus-Lejligheder

3

81 m²

5766 kr.

18000 kr.

![](https://vojensab.dk/i/MOLIRIMEDIA/b43d3698-0242-4496-fd93-08de013c75e2?width=800)

Gårdhavehus-Lejligheder

3

81 m²

4972 kr.

18000 kr.

![](https://vojensab.dk/i/MOLIRIMEDIA/b43d3698-0242-4496-fd93-08de013c75e2?width=800)

Gårdhavehus-Lejligheder

3

85 m²

5186 kr.

19000 kr.

![](https://vojensab.dk/i/MOLIRIMEDIA/2014e817-e1d6-444d-fd69-08de013c75e2?width=800)

Gårdhavehus-Lejligheder

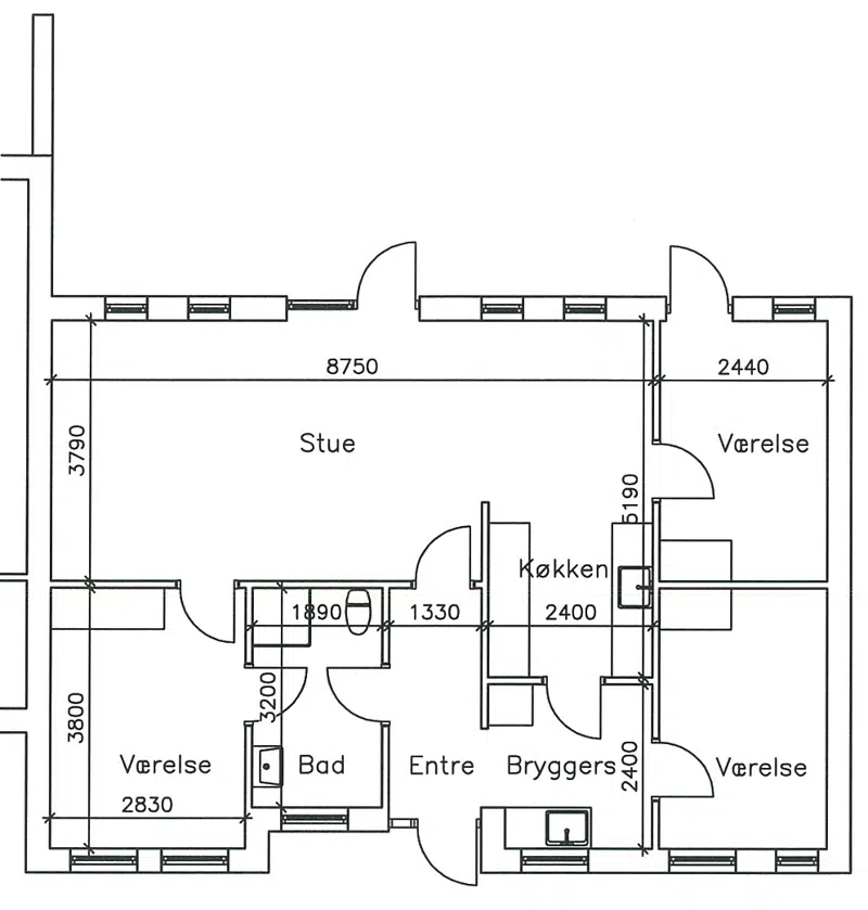
4

99 m²

7053 kr.

23000 kr.

![](https://vojensab.dk/i/MOLIRIMEDIA/ccb20dd3-5b3c-4aa6-fd49-08de013c75e2?width=800)

Gårdhavehus-Lejligheder

4

99 m²

7230 kr.

23000 kr.

![](https://vojensab.dk/i/MOLIRIMEDIA/ccb20dd3-5b3c-4aa6-fd49-08de013c75e2?width=800)

Gårdhavehus-Lejligheder

4

99 m²

6679 kr.

23000 kr.

![](https://vojensab.dk/i/MOLIRIMEDIA/ccb20dd3-5b3c-4aa6-fd49-08de013c75e2?width=800)

Gårdhavehus-Lejligheder

4

95 m²

6164 kr.

22000 kr.

![](https://vojensab.dk/i/MOLIRIMEDIA/1145fc2f-c4fa-4d06-fd80-08de013c75e2?width=800)

Gårdhavehus-Lejligheder

4

95 m²

5725 kr.

22000 kr.

![](https://vojensab.dk/i/MOLIRIMEDIA/1145fc2f-c4fa-4d06-fd80-08de013c75e2?width=800)

Gårdhavehus-Lejligheder

4

99 m²

5946 kr.

23000 kr.

![](https://vojensab.dk/i/MOLIRIMEDIA/ccb20dd3-5b3c-4aa6-fd49-08de013c75e2?width=800)

Gårdhavehus-Ungdomsboliger

1

29 m²

2800 kr.

7500 kr.

![](https://vojensab.dk/i/MOLIRIMEDIA/42c15d38-ec5e-40d7-fdc7-08de013c75e2?width=800)

Gårdhavehus-Ungdomsboliger

1

29 m²

2800 kr.

7500 kr.

![](https://vojensab.dk/i/MOLIRIMEDIA/42c15d38-ec5e-40d7-fdc7-08de013c75e2?width=800)

## Afdelingsvicevært

### Nicolai Hansen

22109708

nh@vojensab.dk

### Træffetider

Alle hverdage fra kl. 9.00-9.30

## Afdelingsbestyrelsen

Navn

Titel

Valgperiode

Hans Chr. Møller

Formand

Periode: 01.10.2025 - 30.09.2027

Kaj F. Rønn

Næstformand

Periode: 01.10.2025 - 30.09.2027

Inge Marie Poort

Bestyrelse

Periode: 01.10.2024 - 30.09.2026

Poul Erik Larsen

Bestyrelse

Periode: 01.10.2024 - 30.09.2026

Ane List

Bestyrelse

Periode: 01.10.2024 - 30.09.2026

Lis Houman-Jensen

Suppleant

Periode: 01.10.2025 - 30.09.2026

Niels Nielsen

2. suppleant

Periode: 01.10.2025 - 30.09.2026

## Afdelings dokumenter og filer

###

                                                Referater - afdelingsmøder

[Referat-afdelingsbestyrelsesmøde-05.02.2026.pdf](https://vojensab.dk/p/Files/Boligdata/Afdelinger/1-16/Referater%20-%20afdelingsm&#xF8;der/Referat-afdelingsbestyrelsesm&#xF8;de-05.02.2026.pdf)
                                            [Referat ordinært afd. møde afd. 16-17-18 - 2025.pdf](https://vojensab.dk/p/Files/Boligdata/Afdelinger/1-16/Referater%20-%20afdelingsm&#xF8;der/Referat-ordin&#xE6;rt-afd.-m&#xF8;de-afd.-16-17-18---2025.pdf)

###

                                                Regler i afdelingen

[Ordensregler NYE.pdf](https://vojensab.dk/p/Files/Boligdata/Afdelinger/1-16/Regler%20i%20afdelingen/Ordensregler-NYE.pdf)
                                            [Ordensregler.pdf](https://vojensab.dk/p/Files/Boligdata/Afdelinger/1-16/Regler%20i%20afdelingen/Ordensregler.pdf)
                                            [Råderet afd. 16.pdf](https://vojensab.dk/p/Files/Boligdata/Afdelinger/1-16/Regler%20i%20afdelingen/R&#xE5;deret-afd.-16.pdf)
                                            [Vedligeholdelsesreglement.pdf](https://vojensab.dk/p/Files/Boligdata/Afdelinger/1-16/Regler%20i%20afdelingen/Vedligeholdelsesreglement.pdf)

## Placering
