---
title: "Bofællesskabet Kirsebærhaven"
description: "1-22"
date: "2026-05-04"
created: "2025-10-27"
---

-

https://maps.google.dk/?q=55.3442682,9.2489536

# Bofællesskabet Kirsebærhaven

Afdeling 22

## Velkommen til Bofællesskabet Kirsebærhaven

Afdelingen er opført i 1996, hvor der er bygget et Bofællesskab for fysisk/psykisk handicappede ialt 6 stk. 2 værelses boliger. Haderslev Kommune visiterer beboer til boligerne.

**Afdelingsadresser**
Vestergyden

## Afdelingsinfo

Husdyr

Nej

Husdyrhold er ikke tilladt.

Hvidevarer

Se mere

Køl/frys

Indskudslån

Se mere

Der kan søges indskudslån til denne afdeling

Husleje

Se mere

Der er forskellige huslejer, afhængig af, om der er foretaget individuelle renoveringer.

## Boliger i afdelingen

Ældreboliger

2 rum

Ældreboliger

Boligtype

Værelser

Størrelse

Husleje

Indskud/dp

Plantegning

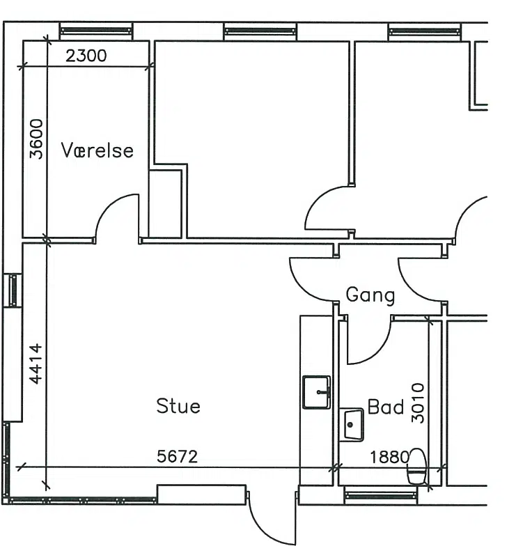
Bofællesskab-Ældreboliger

2

70 m²

6833 kr.

15000 kr.

![](https://vojensab.dk/i/MOLIRIMEDIA/2b48b105-58c2-4873-fdbc-08de013c75e2?width=800)

Bofællesskab-Ældreboliger

2

64 m²

6341 kr.

15000 kr.

![](https://vojensab.dk/i/MOLIRIMEDIA/409e5465-116e-46b9-fda1-08de013c75e2?width=800)

Bofællesskab-Ældreboliger

2

61 m²

6085 kr.

15000 kr.

![](https://vojensab.dk/i/MOLIRIMEDIA/76173bb2-a257-4f12-fdc6-08de013c75e2?width=800)

Bofællesskab-Ældreboliger

2

64 m²

6146 kr.

15000 kr.

![](https://vojensab.dk/i/MOLIRIMEDIA/6a76d91f-1570-4f06-fd48-08de013c75e2?width=800)

Bofællesskab-Ældreboliger

2

61 m²

6070 kr.

15000 kr.

![](https://vojensab.dk/i/MOLIRIMEDIA/61e1b07d-d801-4ffa-fd9f-08de013c75e2?width=800)

Bofællesskab-Ældreboliger

2

61 m²

6280 kr.

15000 kr.

![](https://vojensab.dk/i/MOLIRIMEDIA/6dd0ca00-a7ab-415f-fdbe-08de013c75e2?width=800)

## Afdelingsvicevært

### Michael Bjørkquist

22109740

mb@vojensab.dk

### Træffetider

Alle hverdage fra kl. 9.00-9.30

## Afdelings dokumenter og filer

###

                                                Referater - afdelingsmøder

[Referat ordinært afd. møde afd. 22 - 2025.pdf](https://vojensab.dk/p/Files/Boligdata/Afdelinger/1-22/Referater%20-%20afdelingsm&#xF8;der/Referat-ordin&#xE6;rt-afd.-m&#xF8;de-afd.-22---2025.pdf)

###

                                                Regler i afdelingen

[Ordensregler NYE.pdf](https://vojensab.dk/p/Files/Boligdata/Afdelinger/1-22/Regler%20i%20afdelingen/Ordensregler-NYE.pdf)
                                            [Ordensregler.pdf](https://vojensab.dk/p/Files/Boligdata/Afdelinger/1-22/Regler%20i%20afdelingen/Ordensregler.pdf)
                                            [Vedligeholdelsesreglement.pdf](https://vojensab.dk/p/Files/Boligdata/Afdelinger/1-22/Regler%20i%20afdelingen/Vedligeholdelsesreglement.pdf)

## Placering
