---
title: "Ældreboliger - Jul. Nielsens Vej "
description: "1-19"
date: "2026-03-11"
created: "2025-10-27"
---

-
-

https://maps.google.dk/?q=55.247616,9.2948576

# Ældreboliger - Jul. Nielsens Vej

Afdeling 19

## Velkommen til Ældreboliger - Jul. Nielsens Vej

Afdelingen er opført i 1983, hvor der er bygget 10 stk. 2- værelses rækkehuse. Haderslev Kommune visiterer beboere til boligerne.

**Afdelingsadresser**
Julius Nielsens Vej

## Afdelingsinfo

Husdyr

Ja

Husdyrhold er tilladt efter ansøgning

Hvidevarer

Se mere

Køl/frys, komfur, emhætte

Indskudslån

Se mere

Der kan søges indskudslån til denne afdeling

TV/antenne

Se mere

Afdelingen er tilsluttet fælles kabel TV

Husleje

Se mere

Der er forskellige huslejer, afhængig af, om der er foretaget individuelle renoveringer.

Forsyning

Se mere

VAB tilmelder til følgende forsyningsselskaber: Norlys og Brunata

## Boliger i afdelingen

Lejligheder

2 rum

Lejligheder

Boligtype

Værelser

Størrelse

Husleje

Indskud/dp

Plantegning

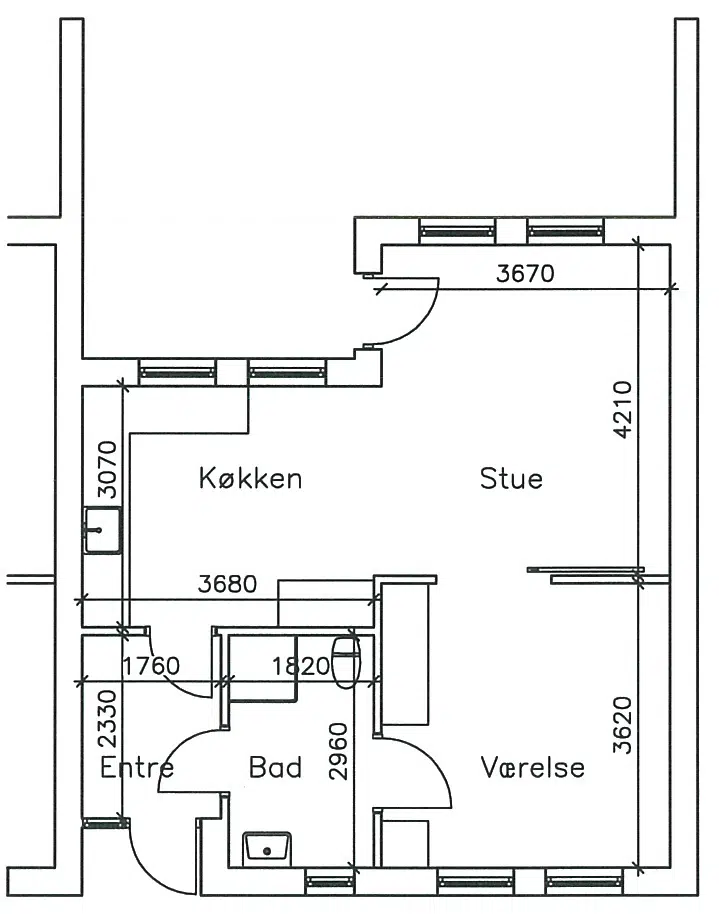
Rækkehus-Lejligheder

2

59.9 m²

4703 kr.

14000 kr.

![](https://vojensab.dk/i/MOLIRIMEDIA/a99f8eab-1432-499e-fd7f-08de013c75e2?width=800)

## Afdelingsvicevært

### Nicolai Hansen

22109708

nh@vojensab.dk

### Træffetider

Alle hverdage fra kl. 9.00-9.30

## Afdelings dokumenter og filer

###

                                                Referater - afdelingsmøder

[Referat ordinært afd. møde afd. 19 - 21 - 2025.pdf](https://vojensab.dk/p/Files/Boligdata/Afdelinger/1-19/Referater%20-%20afdelingsm&#xF8;der/Referat-ordin&#xE6;rt-afd.-m&#xF8;de-afd.-19---21---2025.pdf)

###

                                                Regler i afdelingen

[Ordensregler NYE.pdf](https://vojensab.dk/p/Files/Boligdata/Afdelinger/1-19/Regler%20i%20afdelingen/Ordensregler-NYE.pdf)
                                            [Ordensregler.pdf](https://vojensab.dk/p/Files/Boligdata/Afdelinger/1-19/Regler%20i%20afdelingen/Ordensregler.pdf)
                                            [Råderet afd. 19.pdf](https://vojensab.dk/p/Files/Boligdata/Afdelinger/1-19/Regler%20i%20afdelingen/R&#xE5;deret-afd.-19.pdf)
                                            [Vedligeholdelsesreglement.pdf](https://vojensab.dk/p/Files/Boligdata/Afdelinger/1-19/Regler%20i%20afdelingen/Vedligeholdelsesreglement.pdf)

## Placering
